Баня «Ангара» в Кургане – строительство под ключ из клееного бруса с террасой
Материалы для стройки
2 500 000
71 M2
Река Ангара — это крупная река в Восточной Сибири, единственная река, вытекающая из озера Байкал.
Она протекает по территории Иркутской области и Красноярского края России, является правым притоком Енисея.
Длина: 1 779 км (от истока до устья).
Площадь бассейна: 1 040 000 км².
Крупные города на Ангаре: Иркутск, Ангарск, Усолье-Сибирское, Братск, Усть-Илимск.
Описание проекта
Баня "Ангара" в Кургане – уютный уголок для отдыха в Курганской области
Ищете комфортную и функциональную баню в Кургане или Курганской области? Проект "Баня Ангара" – это идеальное решение для тех, кто ценит качество, уют и продуманное пространство. Одноэтажное строение из клееного бруса общей площадью 71 м² сочетает в себе надежность, экологичность и отличную теплоизоляцию, что особенно важно для климата Зауралья.
Планировка и удобства
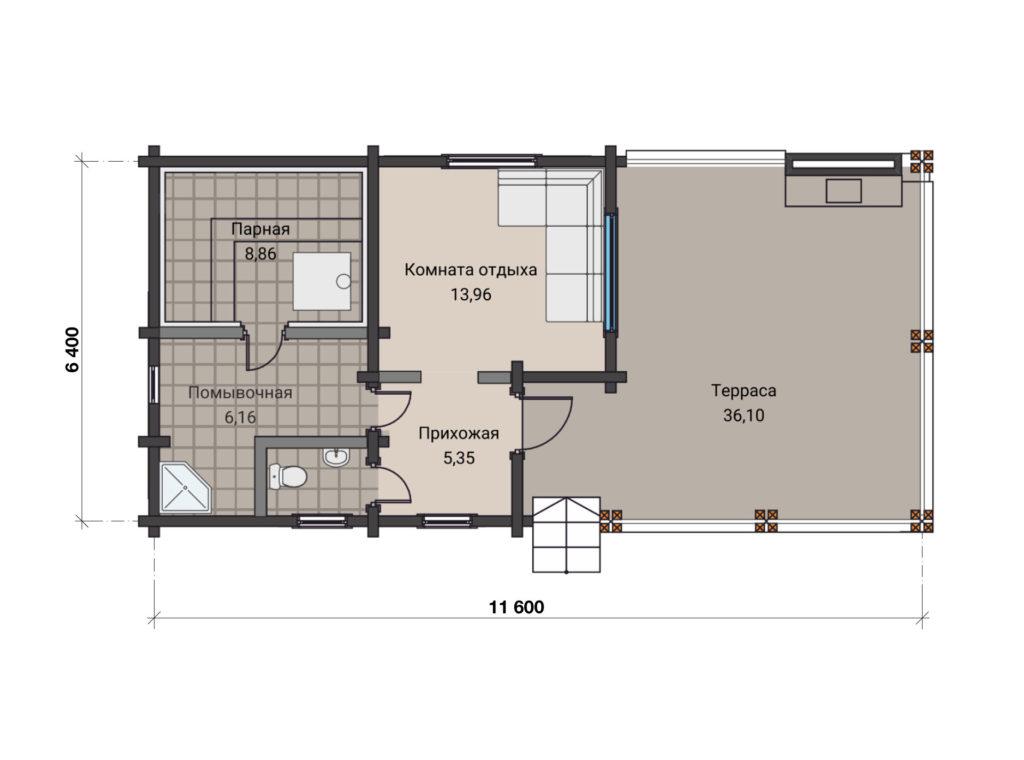
В бане 5 помещений, включая:
Просторную спальню – для комфортного отдыха после парной.
Санузел – с удобствами для гостей.
Парную и помывочную – для полноценного банного ритуала.
Комнату отдыха – где можно собраться с друзьями или семьей.
Террасы – отдых на свежем воздухе
Общая площадь террас – 36 м², что позволяет организовать зону отдыха на природе. Здесь можно поставить шезлонги, мангал или просто наслаждаться свежим воздухом, любуясь живописными видами Курганской области.
Почему выбирают "Баню Ангара" в Кургане?
Экологичный клееный брус – долговечность и тепло.
Продуманная планировка – все необходимое для отдыха.
Просторные террасы – идеально для летних посиделок.
Создайте свой уголок релакса с баней "Ангара" – наслаждайтесь уютом и комфортом в любое время года!
Заказывайте проект в Кургане – ваш отдых станет еще приятнее!
Характеристики
- Общая площадь, м2 71
- Этажей 1
Оставить заявку
Оставьте заявку на сайте, наш менеджер свяжется с Вами и проконсультирует более подробно.
...







