"Баня из клееного бруса «Лена» в Кургане — строительство под ключ"
Материалы для стройки
1 800 000
54 M2
Река Лена — одна из крупнейших рек мира и самая длинная река России в пределах одного государства.
Длина: около 4 400 км (10-е место в мире).
Площадь бассейна: 2 490 000 км² (крупнейший в России).
Города на Лене: Якутск (крупнейший порт, столица Якутии), Усть-Кут (важный транспортный узел), Ленск, Олёкминск, Киренск.
Описание проекта
Баня "проект Лена" из клееного бруса в Кургане – комфорт и качество для вашего отдыха
Ищете надежную и красивую баню в Курганской области? "Баня по проекту Лена" – это идеальное решение для тех, кто ценит уют, долговечность и натуральные материалы.
Почему стоит выбрать баню "проект Лена" в Кургане?
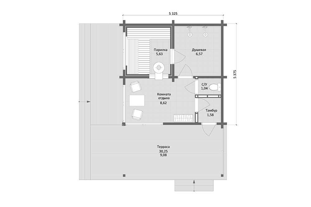
Практичная площадь – 53,60 м² (внутреннее пространство – 35,36 м², террасы и крыльцо – 18,24 м²)
Эргономичная планировка – можно обустроить парную, комнату отдыха и душевую
Просторные террасы – идеальное место для отдыха на свежем воздухе
Преимущества бани из клееного бруса
Экологичность – натуральная древесина безопасна для здоровья и окружающей среды.
Теплоэффективность – низкая теплопроводность сохраняет тепло, экономя ваши расходы на обогрев.
Прочность и устойчивость – клееный брус не деформируется, обеспечивая долговечность конструкции.
Быстрое строительство – точные размеры и легкая сборка сокращают сроки возведения.
Эстетика – благородный внешний вид дерева создает уютную атмосферу.
Естественная вентиляция – древесина "дышит", поддерживая комфортный микроклимат.
Отличная звукоизоляция – в бане всегда тихо и спокойно.
Защита от влаги и вредителей – специальная обработка предотвращает гниение и повреждения.
Минимум отделки – клееный брус красив сам по себе, не требуя сложной отделки.
Круглогодичное использование – подходит как для летнего, так и для зимнего отдыха.
Идеальное место для отдыха в Курганской области
Баня "проект Лена" – это не просто функциональное строение, а ваш личный уголок релакса. Установите ее на загородном участке и наслаждайтесь теплом, свежим воздухом и уединением в любое время года.
Выбирайте качество и комфорт – закажите баню по "проекту Лена" из клееного бруса уже сегодня!
Характеристики
- Общая площадь, м2 54
- Этажей 1
Оставить заявку
Оставьте заявку на сайте, наш менеджер свяжется с Вами и проконсультирует более подробно.
...




