"Строительство домов из клееного бруса в Кургане под ключ"
Материалы для стройки
6 900 000
87 M2
Звезда Хамаль (α Овна) - это самая яркая звезда в созвездии Овна и одна из ярчайших звёзд на ночном небе. Она находится на расстоянии около 64 световых лет от Земли.
Хамаль - это оранжевый гигант, который завершает стадию своей жизни, когда его ядро больше не может поддерживать термоядерный синтез водорода. Вместо этого он использует ядра гелия для создания энергии, что приводит к расширению и охлаждению звезды. Его возраст оценивается примерно в 1,5 миллиарда лет.
Описание проекта
Построим Дом Вашей Мечты в Кургане и Курганской Области: Качественное Строительство Под Ключ
Мечтаете о тёплом и уютном доме в Кургане? Наша компания предлагает полный комплекс услуг по строительству домов из клееного бруса с гарантией качества!
Что входит в строительство под ключ? Ленточный фундамент – надёжная основа для вашего дома.
Коробка из клееного бруса (150×180 мм) – экологичность, прочность и долговечность.
Стропильная система и мягкая кровля – устойчивость к любым погодным условиям Курганской области.
Утепление минеральной ватой – энергоэффективность и снижение затрат на отопление.
Балки пола и потолка – завершающий этап для идеального интерьера.
Почему выбирают нас?
Строим дома в Кургане и области – знаем все особенности климата и грунтов. Используем премиальный клееный брус – натурально, прочно, без усадки.
Современные технологии утепления – комфорт зимой и прохлада летом.
Опытные строители – работаем быстро, качественно и в срок.
Преимущества наших домов:
Быстрое возведение – от фундамента до крыши.
Энергоэффективность – экономия на отоплении.
Эстетика и надёжность – дом на десятилетия.
Закажите строительство дома мечты уже сегодня!
Звоните – проконсультируем и рассчитаем стоимость!
Строим в Кургане и по всей Курганской области с гарантией!
Качество. Надёжность. Ваш уют.
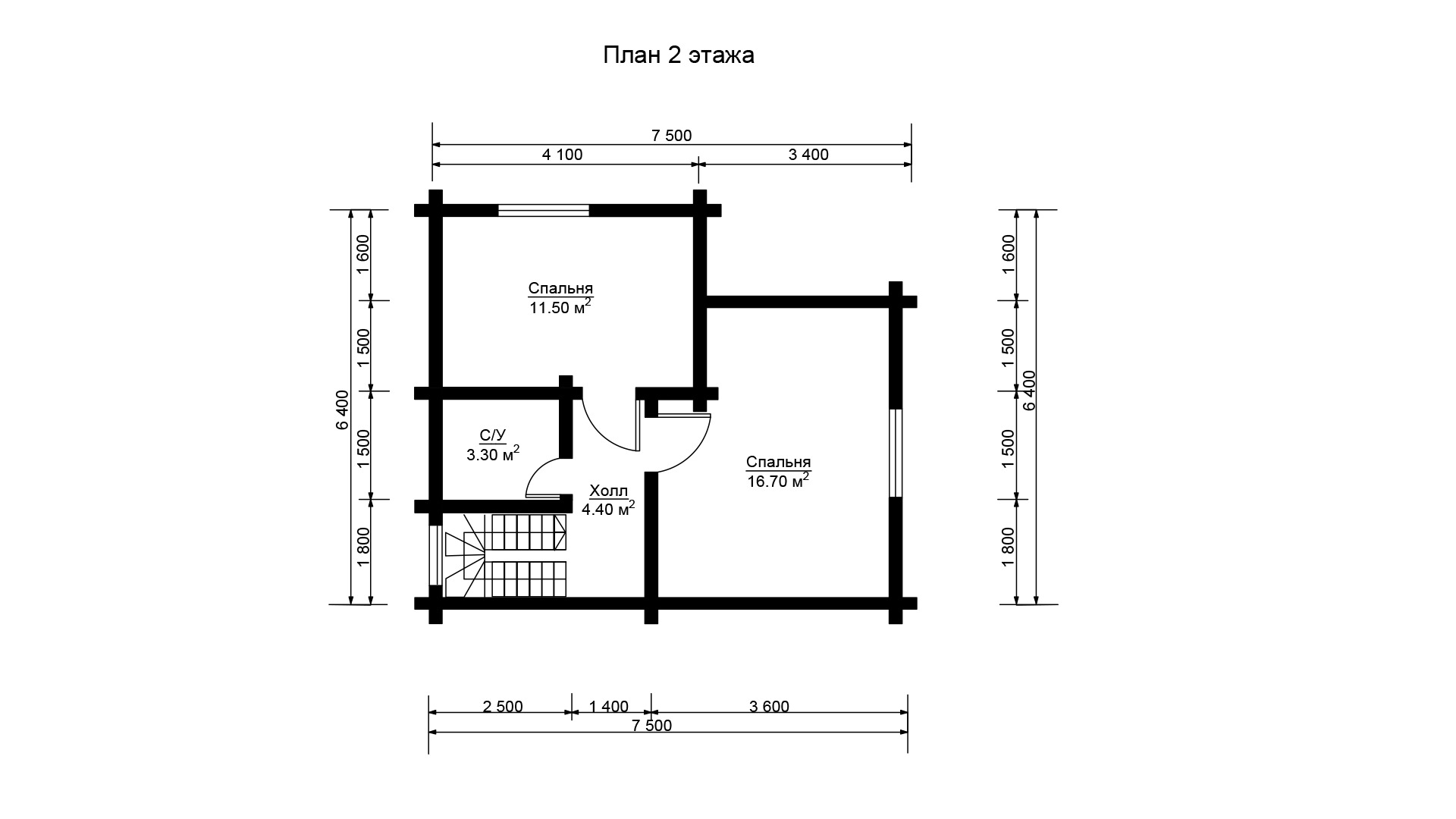
Характеристики
- Общая площадь, м2 87
- Кол-во комнат 4
- Этажей 2
Оставить заявку
Оставьте заявку на сайте, наш менеджер свяжется с Вами и проконсультирует более подробно.
...





