Проект дома «Алиот» — готовый дом для большой семьи с 3 спальнями и современной планировкой
Материалы для стройки
10 600 000
167 M2
Звезда Алиот (ε Большой Медведицы) - это третья по яркости звезда в созвездии Большой Медведицы и одна из ярчайших звёзд на ночном небе. Она находится на расстоянии около 81 светового года от Земли.
Алиот - это бело-голубая звезда спектрального класса B, что указывает на её высокую температуру и светимость. Он является горячим субгигантом, что означает, что он уже исчерпал запасы водорода в своём ядре и начал превращаться в красный гигант. Его возраст оценивается примерно в 1 миллиард лет.
Описание проекта
<h4>Проект Дома Алиот: Простор и Комфорт для Большой Семьи </h4><h4>Предлагаем вашему вниманию проект дома Алиот — идеальное решение для большой и дружной семьи. Этот дом сочетает в себе просторные помещения, удобную планировку и современный дизайн.</h4>
<h4>
Планировка Дома Алиот: Комфорт и Функциональность </h4>
<h4>Первый Этаж: Большая Кухня-Гостиная: Просторное и светлое помещение, объединяющее кухню и гостиную, станет сердцем вашего дома. Здесь вы сможете готовить, отдыхать и проводить время с семьей и друзьями. </h4>
<h4>Санузел: Обеспечивает комфорт и удобство для всей семьи.</h4>
<h4>
Две Комнаты: Идеальны для размещения спален или дополнительного кабинета.</h4>
<h4>
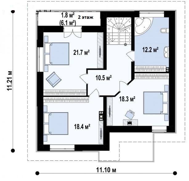
Второй Этаж: </h4>
<h4>Три Комнаты: Просторные и уютные, они предлагают достаточно места для отдыха и личного пространства. </h4>
<h4>Просторная Ванна с Санузлом: Обеспечивает комфорт и удобство для всех членов семьи.</h4>
<h4>
Почему Выбрать Проект Алиот?</h4>
<h4>
Просторные Помещения: Дом предлагает достаточное количество пространства для комфортного проживания большой семьи.</h4>
<h4>
Удобная Планировка: Разделение на этажи позволяет рационально организовать жилое пространство.</h4>
<h4>
Современный Дизайн: Лаконичные формы и чистые линии делают дом стильным и актуальным. </h4>
<h4>Создайте Дом Своей Мечты с Проектом Алиот!</h4>
<h4>
Проект дома Алиот — это ваш шанс обрести уютное жильё, соответствующее вашим предпочтениям и стилю жизни. Начните строительство уже сегодня и наслаждайтесь комфортом и простором вашего нового дома.</h4>
Характеристики
- Площадь застройки, м2 129
- Общая площадь, м2 167
- Кол-во комнат 6
- Этажей 2
- Гараж нет
Оставить заявку
Оставьте заявку на сайте, наш менеджер свяжется с Вами и проконсультирует более подробно.
...






