Дом мечты в Крыму: 2 этажа, 220 м², стильный хай-тек дизайн"
Материалы для стройки
14 000 000
220 M2
Мегрец — звезда в созвездии Большой Медведицы, обозначаемая греческой буквой дельта (δ). Она является частью астеризма Большого Ковша и расположена между звездами Дубхе и Фекдой. Название звезды происходит от арабского слова «al-maghriz», означающего «основание хвоста медведя».
Тип: главная последовательность (A3V)
Видимая величина: +3,31
Расстояние от Земли: около 81 светового года
Масса: примерно 2,4 массы Солнца
Радиус: приблизительно 1,4 радиуса Солнца
Температура поверхности: около 8700 Кельвин
Возраст: оценивается примерно в 300 миллионов лет
Описание проекта
Современный дом в стиле Хай-Тек в Севастополе и Крыму
Представляем современный жилой дом в стиле Хай-Тек – идеальное сочетание элегантности, функциональности и передовых технологий. Этот дом, построенный по каркасно-монолитной технологии, гарантирует высокую прочность и долговечность, что особенно важно для климата Крыма и Севастополя.
Основные характеристики:
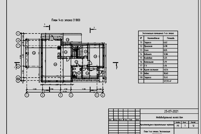
Общая площадь: 220,47 м²
Площадь 1-го этажа: 121,70 м²
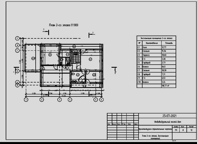
Площадь 2-го этажа: 98,77 м²
Жилая площадь: 66,77 м²
Габариты: 9,720 × 15,650 м
Материалы и отделка:
Несущие стены: газоблок 300 мм – отличная тепло- и звукоизоляция для крымского климата.
Кровля: эксплуатируемая – дополнительное пространство для отдыха с видом на живописные пейзажи Крыма.
Водосточная система: внутренняя сифонного типа – надежность даже в сезон дождей.
Фасад: декоративная штукатурка – стильный и современный облик.
Этот дом – отличный выбор для тех, кто ценит инновации, комфорт и эстетику. Он идеально подойдет для семьи, мечтающей о современном и уютном жилье в Севастополе или Республике Крым.
Оцените преимущества жизни в технологичном доме в одном из самых живописных регионов России!
Характеристики
- Общая площадь, м2 220
- Этажей 2
Оставить заявку
Оставьте заявку на сайте, наш менеджер свяжется с Вами и проконсультирует более подробно.
...







